物件名:愛宕町1丁目 店舗
7万円
- 三重県松阪市愛宕町1丁目28番、30番3
- 94.33㎡(土地) 224.16㎡(建物)
- 1959年 7月
- (近鉄線・JR) 松阪駅 / 三交バス 愛宕町停
- 第二小学校 / 久保中学校
物件概要 | |
---|---|
物件名称 | 愛宕町1丁目 店舗 |
種別 | 賃貸物件 |
種類 | 建物(賃貸) |
土地面積(㎡) | 94.33㎡ |
土地面積(坪) | 28.53坪 |
現況 | 空家 |
接面道路 | 公道 14.0m 南西側 |
取引態様 | 貸主 |
情報更新日 | 2025/10/01 |
賃料 | 70,000円 |
敷金 | 2ヶ月 |
礼金 | なし |
火災保険 | 実費 |
設備 | |
---|---|
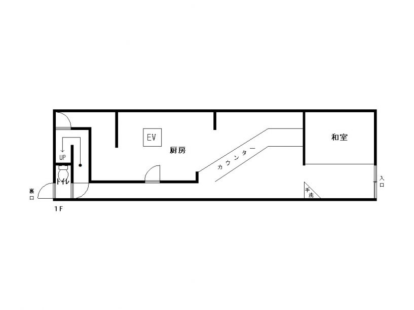
1F建物面積 | 71.90㎡ |
1F建物坪数 | 21.74坪 |
2F建物面積(㎡) | 76.13㎡ |
2F建物坪数 | 23.02坪 |
3F以上の建物面積 | 76.13㎡ |
3F以上の建物坪数 | 23.02坪 |
合計建物面積 | 224.16㎡ |
合計建物坪数 | 67.80坪 |
建物種類 | 店舗 |
建物構造 | 鉄筋コンクリート造 陸屋根 3階建 |
引渡し | 現況渡し |
電気 | 電気 |
ガス | 都市ガス |
飲用水 | 上水道 |
汚水・雑排水 | 浄化槽 |
周辺環境 | |
---|---|
交通1 | (近鉄線・JR)   松阪駅 / 三交バス 愛宕町停 |
その他 | |
---|---|
備考 | ※保証料:月額総賃料の100%(初年度) ※申込時、保証会社の審査があります。 ※自治会の規則に従ってください。 ※2.3階に雨漏りあり。 ※現状有姿での賃貸。 |